Ingeniería y Construcción
ITT S.A.
Ofrecemos soluciones para el sector Upstream / Downstream de la industria del petróleo y gas.
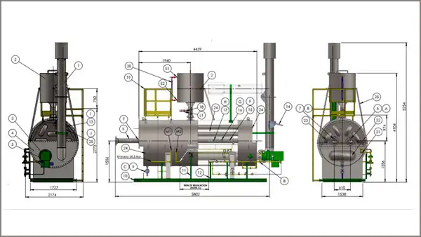
Fabricamos recipientes a presión, Manifold, puentes de medición de Oil & Gas en todo
lo referente a cañerías y estructuras de acuerdo con los requerimientos específicos de nuestros clientes.
Además proveemos equipamiento para generadores de energía eléctrica.
Innovación Técnica Total S.A. desarrolla actividades en su planta conformadas por dos galpones de 10.000 m2 cubiertos ubicada en la ciudad de Quilmes Oeste en la provincia de Buenos Aires.
Innovación Técnica Total S.A.
Años de trayectoria en el rubro metalmecánico
Formada con recursos humanos especializados en cada una de nuestras áreas para poder brindar a nuestros clientes la mejor calidad y confiabilidad.
7.500m2
Planta cubierta
+800
Equipos entregados
+ 20 años
En el Mercado
+ 500
Clientes satisfechos
Calidad & Experiencia
Servicios

Construcción
Experiencia en obra o en taller

Ingeniería
Diseño y desarrollo de proyectos

Servicios
Conoce más acerca de nuestros servicios
Consecuente con las mejores prácticas
- Sustentabilidad
- Tecnología de punta
- Desarrollo sobre diseños propios y del cliente
- Profesionales altamente calificados
Innovación y eficiencia en petróleo, gas y otras industrias
Envíanos tu consulta y descubre cómo ITT S.A. puede potenciar tu negocio.
